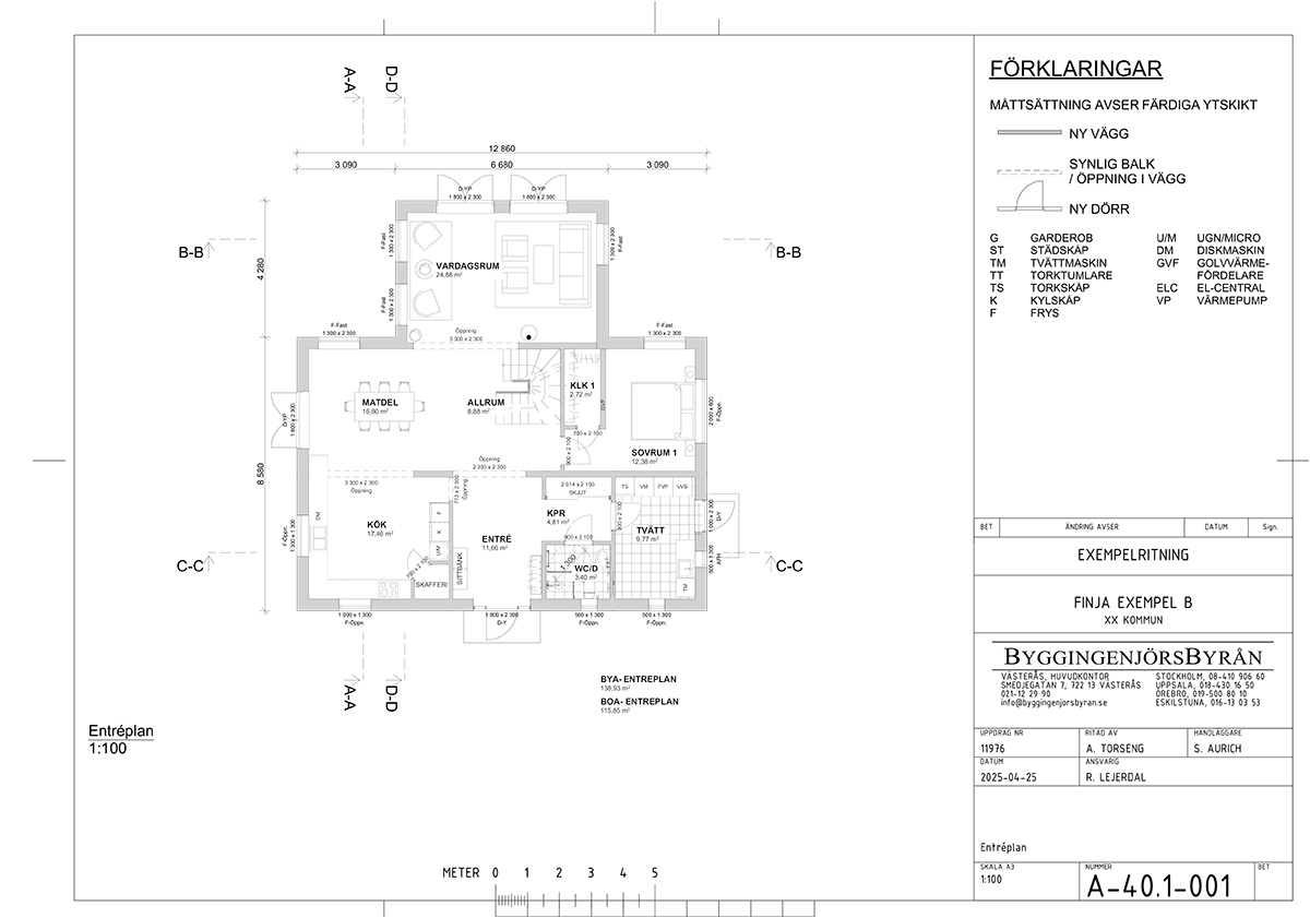
Mura och putsa en klassisk villa
En klassisk svensk 1,5 halv plans villa uppskattas och passar till många familjer. Finja Betong vill med denna DIY:s steg för steg-beskrivning göra det enkelt att komma igång med den putsade stenvillan.
Vi rekommenderar att du utgår ifrån underlaget när du tillsammans med en lokal konstruktör eller entreprenör sätter de sista detaljerna för huset och tomten.
Produkter utan bild i listan längre ner ingår inte i Finjas sortiment.
Vilka produkter används?
Finja Betong erbjuder högkvalitativa produkter till hela drömhusbygget – från grund, väggar och puts till ytbehandling. Nedan är de huvudsakliga produkterna som används i denna DIY-beskrivning.
Grunden
Till grunden används Finja Exakt-element som bryter köldbryggan med en färdig utsida av borstad betong. Som grundisolering används cellplast från Finja Betong.
Väggar
Ytterväggar muras med Finja Murbruk Exakt och Finja Isolerblock Exakt 350. Exakt-blocken ger ett fuktsäkert, klimatsmart och välisolerat hus. Kärnan av isolering mitt i blocken gör huset energisnålt. Murbruket är specialanpassat för att användas med Isolerblock Exakt och Finjas Murlåda Exakt.
Puts
Det finns flera alternativ för hur väggarna kan putsas. I detta exempel har vi nätat fasaden med Finja Fasadnät som fästs med Finja Nätfäste Universal. Därefter är det putsat med Finja Puts- och Murbruk C.
Ytbehandling av fasad
Finja Betong erbjuder flera olika ytbehandlingar med många kulörer och ytstrukturer som skapar genomfärgade, estetiskt tilltalande fasader med personlig prägel. I detta exempel har vi valt att måla huset med Fasadfärg Silikat.
1. Förbered grunden
Börja med att schakta bort matjord och fortsätt ner till minst 400 mm under slutliga grundens överkant. Om marken består av lera eller finmaterial, rulla ut en geoduk som täcker hela byggnadens yta. Dränera enligt konstruktörens anvisning.
Sätt ut profiler och spänn upp murarsnöre i linje med grundens ytterkant och i höjd med den färdiga grundens överkant. Mät långsidorna och diagonaler för att säkerställa att hörnen är vinkelräta. Lägg ut minst 150 mm makadam. Packa med vibratorplatta. Väg av ytan med ett avvägningsinstrument tills dess att ytan är 400 mm under murarsnöret. Lägg ut VA-ledningar samt tomrör för el.
2. Placera grundelement
Placera ut Exakt-elementen. Börja med hörnen. Säkerställ att ytterkanterna går i linje med murarsnöret. Placera därefter ut övriga kantelement.
För att kapa ett element mät och kapa med hjälp av vinkelslip och fogsvans. Grundelementens borstade yta av betong gör att skarvarna blir mindre synliga. Sammanfoga grundelementen genom att fästa en fixeringskil per skarv i ovankant mellan varje element. Fäst också breda fixeringskilar mellan de vertikala cellplastdelarna, 2 st per element. Fäst en spikplåt per skarv för att sammanfoga elementens bottenskivor.
Lägg därefter ut första lagret med isoleringsskivor innanför Exaktelementen. Nästa lager ska sträcka sig 100 mm in över elementens bottenskiva. Vrid skivorna i andra lagret 90 grader så att skarvarna förskjuts mellan skikten. Sista lagret ska vara av samma storlek som det förra men vrid skivorna så de är i samma riktning som i första lagret så att skarvarna förskjuts. Fixera skivorna i varandra med hjälp av plastspik, ca 4 st per m2.
3. Armera grunden
Placera armeringsdistanser i den yttre och inre kantbalken, 1 st per 600 mm och per armeringsjärn. Trä armeringsbyglar av över fyra armeringsjärn. Placera byglarna på 600 mm avstånd och naja fast dem i armeringsjärnen i byglarnas alla hörn. Placera de sammanfogade armeringsjärnen och byglarna i armeringsdistanserna i inre kantbalken. Vid skarvning överlappas armeringsjärnen med 500 mm och vid hörnen böjs armeringsjärnen.
Kroka på byglarna i armeringsjärnen med 600 mm mellanrum i nedre kro ken och låt dem peka uppåt. Naja fast dem med najtråd och najtång. Placera armeringsjärn även i bygelns övre krok och naja fast. Vid skarvning överlappas armeringsjärnen med 500 mm och vid hörnen böjs de.
Placera ut armeringsdistanser på isoleringsskivorna med ca 3 st per m2. Lägg armeringsnät i armeringsdistanserna med 50 mm avstånd till elementens inre vertikala del. Överlappa näten med 300 mm och naja ihop dem med najtråd. Naja även fast inre kantbalkens byglar i armeringsnäten. Såga 2 st tunna skåror per element, 50 mm djupa, i den inre vertikala cellplastdelen. Tryck ner vinklade armeringsjärn i skårorna så den kortaste sidan är vinklad neråt över de övre armeringsjärnen i yttre kantbalken. Naja fast järnen i armeringsnäten.
Fyll upp på 2/3 av grundens utsida med makadam. På kallare breddgrader kan tjälisolering behövas, rådgör med din konstruktör.
4. Gjuta grund
Nu är det dags att gjuta grunden. Börja med att fylla upp den inre och yttre kantbalken till hälften. Vibrera betongen i inre och yttre kantbalken med vibratorstav. Fyll därefter upp resten av grunden, d.v.s till elementens ovankanter. Vibrera åter betongen i inre och yttre kantbalken med vibratorstav och vibrera hela resten av grunden med sloda eller annat lämpligt verktyg.
Låt betongen härda i ca 2–4 timmar och skura sedan med skurbräda. Glätta därefter betongen utifrån och in mot mitten med ett stålsvärd.
Vattna hela betongytan dagen efter gjutning. Täck betongen med plastfolie i fem dygn. Eftervattna 2–3 gånger under kommande fem dygn. Låt slutligen betongen härda i ytterligare två dygn. Nu är grunden till huset klar och redo för murning av väggar.
Mura ytterväggar
Ytterväggarna muras med Finja Mursystem Exakt som ger ett fuktsäkert, tyst och välisolerat hus. Kärnan av isolering mitt i Isolerblock Exakt gör huset energisnålt. Murbruk Exakt är speciellt anpassat till Isolerblock Exakt och Murlåda Exakt.
1. Förberedelser
Montera och loda in hörnstolpar som är högre än vad första våningens vägg ska bli. Stabilisera dessa med snedsträvor. Markera varje skifts höjd, 200 mm, på den lodräta hörnstolpen med en penna. Spänn murarsnöretmellan reglarna i höjd med det första strecket för att kunna följa detta vid murningen.
Montera glidskikt enligt konstruktörens anvisning. Glidskiktsplåten monteras med den vikta kanten utanför grunden. Plåten kan vid behov monteringsklistras med utefog mot underlaget. Glidskiktsplåten överlappas med 50 mm. Geringssåga i hörnen. Det smalare gummit läggs på plåten intill den uppvikta kanten och det bredare gummit innanför plåten på grunden. Glidskikt ska inte monteras i dörröppningar. Glidskiktsgummit ska överlappas i hörnen. För fler varianter av glidskikt se Projekteringsanvisning Exakt på finja.se.
2. Börja mura
Nu är det dags att lägga blocken i första skiftet. Vid första skiktet används Murbruk Exakt, eller om underlaget är ojämnt, Murbruk B. Till resten av väggen används Murbruk Exakt. Blanda murbruket enligt anvisningarna
på förpackningen. Tillsätt alltid vatten först. Murbruk Exakt kan till första skiktet blandas i en tjockare konsistens. Blanda inte mer än du behöver för stunden.
Lägg ut bruket med murslev på glidskiktet i två strängar och i blockets bredd. Börja i ett hörn med ett Hörn-/avslutsblock Exakt. Kapa 350 mm av ena sidan på blocket med en tigersåg eller alligatorsåg för att säkertställa att köldbryggan bryts. Fortsätt därefter att mura med Isolerblock Exakt. Blocken ska ligga dikt an mot varandra. Inget bruk läggs i stötfogarna. Mät och kapa blocken vid avslutningar om så behövs. Avsluta runt dörr- och fönsteröppningar med Hörn-/avslutsblock Exakt. Justera utifrån snöret och se till att överkanten på blocken är 200 mm över grunden. Det är viktigt att första skiftet är helt i våg för att uppnå ett bra resultat.
Flytta upp snöret 200 mm och mura nästa skift. Fyll Murlåda Exakt med Murbruk Exakt och dra framåt så att två strängar bruk bildas. Murlådan är ett snabbt och praktiskt sätt att applicera rätt mängd bruk. Häll bruket i lådan, placera på förra skiftet med block, öppna luckan och dra. Luckan stängs vid avslut.
3. Armera mellan skiften
Rulla efter hand ut Armering Exakt. Överlappa > 300 mm och fixera armeringen genom att dra med fixkam så att bruket flyter upp mellan maskorna. Följ armeringsgången. Armera också över och under öppningar där armering inte sammanfaller med generell armering.
4. Fortsätt mura
Applicera Murbruk Exakt med murslev i hörnet för att kunna lägga skikt två. Fortsätt applicera murbruk med Murlåda Exakt, i två parallella strängar.
Mura enligt konstruktörens ritning. Följ armeringsgången. Var uppmärksam på att lägga extra armering vid öppningar. Mura i förband med minst en fjärdedels blocks förskjutning för varje skikt. Kontrollera fyllnad av liggfogar och att blocken i stöten/kortsidan ligger dikt an i varandra. Mindre glipor kan förekomma, dessa tätas med bruk innan putsning. Säkerställ att blocken följer murarsnöret och att de ligger i våg.
När du kommer upp till dörr- och fönsteröppningar är det dags att mura ett skift med Finja Isolerblock Exakt Passblock 350x95x600. Detta för att få den slutliga höjden att stämma med dörröppning. Kapa hörnblocken på samma sätt som tidigare för att bryta köldbryggan.
5. Montera balkar ovanför öppningar
Ovanför dörr- och fönsteröppningar monteras en isolerbalk av lämplig längd. Montera i Finja Murbruk Exakt. Balken ska sträcka sig minst 250 mm in på var sida över väggen eller enligt gällande konstruktionsritning. Se finja.se för aktuellt utbud av Isolerbalk Exakt
6. Mura med U-block
Mura första våningens sista skift med U-block. Mura med Finja Murbruk Exakt. Om tjockare fog önskas används Murbruk B eller tjockare konsistiens på Finja Murbruk Exakt. Gersåga blocken i hörnen i 45 grader så att en sammanhängande gjutkanal bildas. Mura resten av skiftet med U-block.
Montera U-blocksisolering på högkant ytterst i U- blocken. Blanda till Finja Grovbetong enligt anvisningar på förpackningen och tidigare instruktioner. Fyll blocken med bruket och armera med två liggande bistål. Överlappa bistålen med 500 mm. Släta till betongen med murslev. Låt torka. Montera glidskikt till våning 2 enligt konstruktörens anvisning.
7. Mellanbjälklag
För att få ett upplag för mellanbjälklaget används Isolerblock Exakt där den inre lättklinkerdelen sågats av. Applicera Murbruk Exakt på lättklinkerytan längs väggens utsida. Tillpassa block av Isolerblock Exakt, såga bort den inre lättklinkerdelen på alla blocken och montera sedan de tillpassade blocken i Murbruk Exakt. Montera/gjut mellanbjälklag.
8. Mura plan två
Montera glidskikt enligt konstruktörens anvisning, t ex glidskiktsgummi. Applicera Murbruk Exakt i två strängar och mura enligt tidigare instruktion.
Mura våning två på samma sätt som våning ett och följ armeringsgången. Avsluta med U-block enligt tidigare instruktion. Ovanpå U-blocken monteras glidskikt enligt konstruktörens anvisning.
Tak
Takstolar kan byggas på många olika sätt så kontakta en takstolsleverantör och/eller en konstruktör för bästa lösning.
1. Grundning
Väggar grundas med Grundningsbruk A. Blanda enligt anvisningar på förpackningen. Tillsätt alltid vatten först. Blanda endast den mängd bruk som behövs för stunden.
Fukta väggytan vid behov. Använd slang med finspridarmunstycke. Tunngrunda samtliga väggar på en gång med grundningsbruk. Detta för att få god vidhäftning mellan puts och putsunderlag. Använd trattspruta eller murslev. Grunda även smygen på samtliga öppningar.
Borsta den grundade ytan med en kalkkvast för att säkerställa att fogar och block täcks. Ytans struktur skall fortsatt vara grov. Gör på samma sätt på samtliga väggar och i samtliga öppningar. Låt grundningsbruket vittorka innan nätning.
2. Nätning
Näta hela ytan med fasadnät. Vik över 200 mm vid ytterhörnen. Fäst med Universalfäste och varmförzinkad spik. Näten överlappas med minst 50 mm. Vik in nätet i smygen så att hela smygen täcks. Nätet ska även täcka 150 mm av väggens insida. Gör på samma sätt runt hela öppningen och vid övriga öppningar.
Vid samtliga hörn runt öppningar i vägg sätts extra förstärkningsnät i formatet 250 x 500 mm diagonalt. Förekommer andra nät monteras alltid dessa diagonala nät ytterst. Fortsätt på samma sätt runt resten av huset.
3. Putsning
Blanda enligt förpackningens anvisningar. Tillsätt alltid vatten först. Blanda endast den mängd bruk du för stunden behöver.
Applicera putsbruket när grundbruket har vittorkat. Börja med att montera en bräda på ytterhörnets motsatta kant. Applicera putsbruk i lodräta strängar på väggen. Använd murslev. Montera läkt lämplig för ändamålet i putsbruket. Brädan och läkten kommer att agera avdragsbanor för att få putsen jämn. Bredd mellan läkt ska vara lika med eller mindre än den rätskiva du använder.
Slå på bruket på väggen mellan läkten med murslev tills ytan mellan brädaoch läkt är täckt. Dra rätskivan längs med avdragsbanorna, bräda/läkt, nerifrån och upp med sågande rörelser. Putsen ska vara lika tjock överallt, totalt 10–12 mm.
Applicera putsbruk till ytterligare en avdragsbana av läkt. Slå på bruket på väggen och dra med rätskivan mellan avdragsbanorna.
Avlägsna brädan i ytterhörnet. Flytta läkten och fäst med putsbruk för ny avdragsbana. Fyll i med putsbruk där läkten suttit och släta ut med en iläggningsslev.
4. Putsa smygar
Montera brädor som avdragsbanor på väggen runt smygar och andra öppningar. Applicera bruket med murslev inuti smygen och jämna ut med en iläggningsslev. Putsa övriga väggar, öppningar och smygar på samma sätt.
5. Förbered för ytbehandling av fasad
När ytan torkat men inte härdat färdigt ska ytan förberedas för ytbehandling. Riv hela ytan med en rivbräda, eller liknande, i en cirkulär rörelse. Eftervattna ytan vid behov. Detta för att minska risken för krympsprickor. Använd slang med finspridarmunstycke.
Ytbehandling av fasad
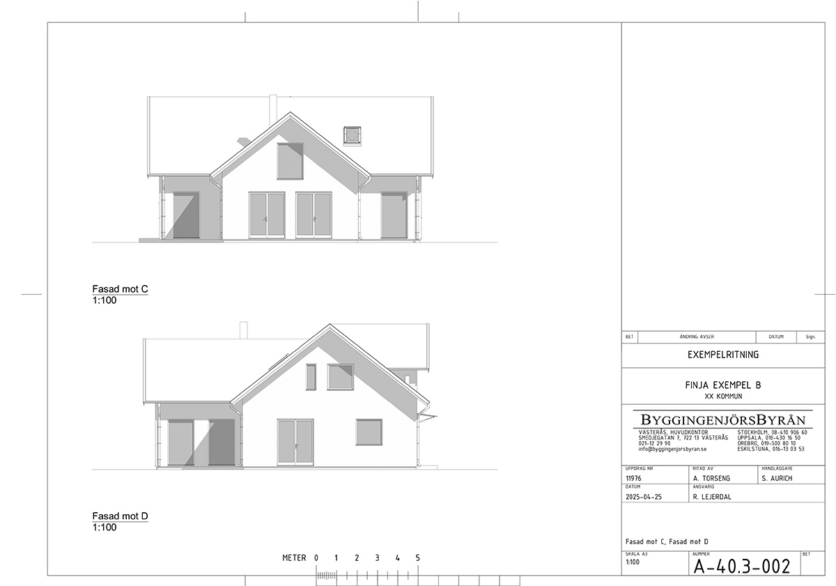
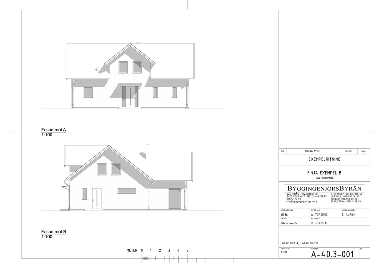
Dags att ge huset sitt slutgiltiga utseende.
1. Förbered för ytbehandling
När ytan torkat men inte färdighärdat ska ytan förberedas för ytbehandling. Filta ytan med en fuktig filtbräda i en mjuk cirkulär rörelse. Putsa övriga väggar och öppningar på samma sätt. Jämna till ytterhörn med iläggningsslev. Eftervattna vid behov. Detta för att minska risken för krympsprickor. Använd slang med finspridarmunstycke. Låt putsen torka tills den är “vittorr”.
2. Ytbehandla
Välj ytputs med hänsyn till underlaget – ytputs, fasadfärg eller ädelputs. I detta exemplet har vi målat med Finja Silikatfärg. Välj den kulör som passar bäst för ändamålet. Se kulörkartor på finja.se.
Slutligen
Innerväggar, fönster, dörrar, plåt med mera monteras enligt leverantörens/konstruktörens anvisningar och era behov. Nu är huset helt färdigt och det är dags att börja inreda. Lycka till!
Vad inspirerar dig?
Sätt din egen prägel på drömhuset genom en förändrad planlösning eller kulör på huset. Ta gärna en bild och mejla Finja Betong,
info@finja.se, för att få ditt projekt publicerat i våra digitala kanaler.

















